Ideas to 3-D Conceptual design to completed projects
Any quality project begins with proper planning.

Fireplace photo idea from Iowa
Built in the shop and shipped out with detailed installation instructions

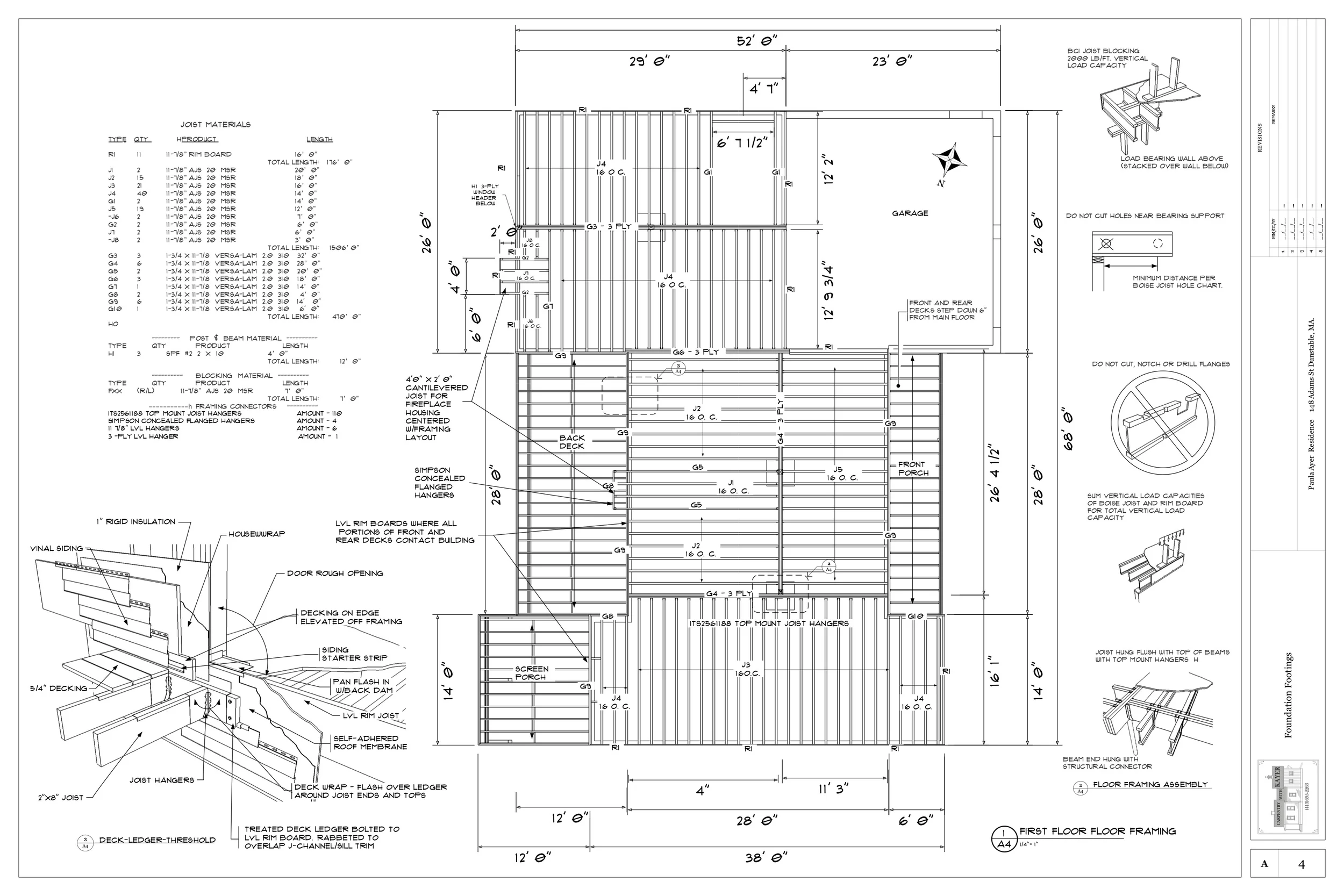
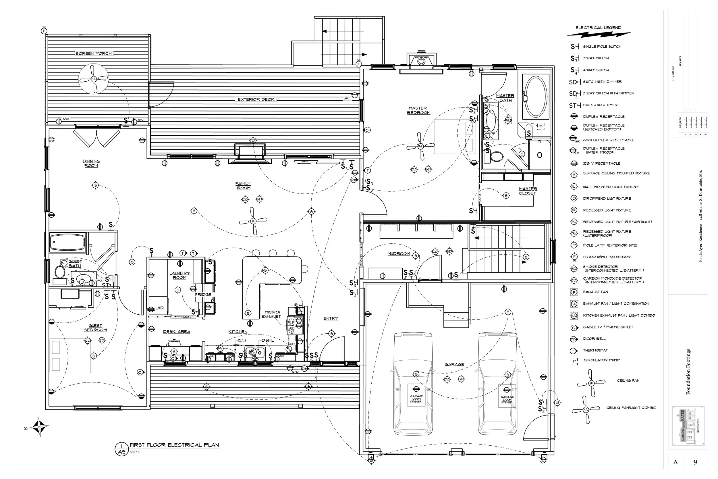
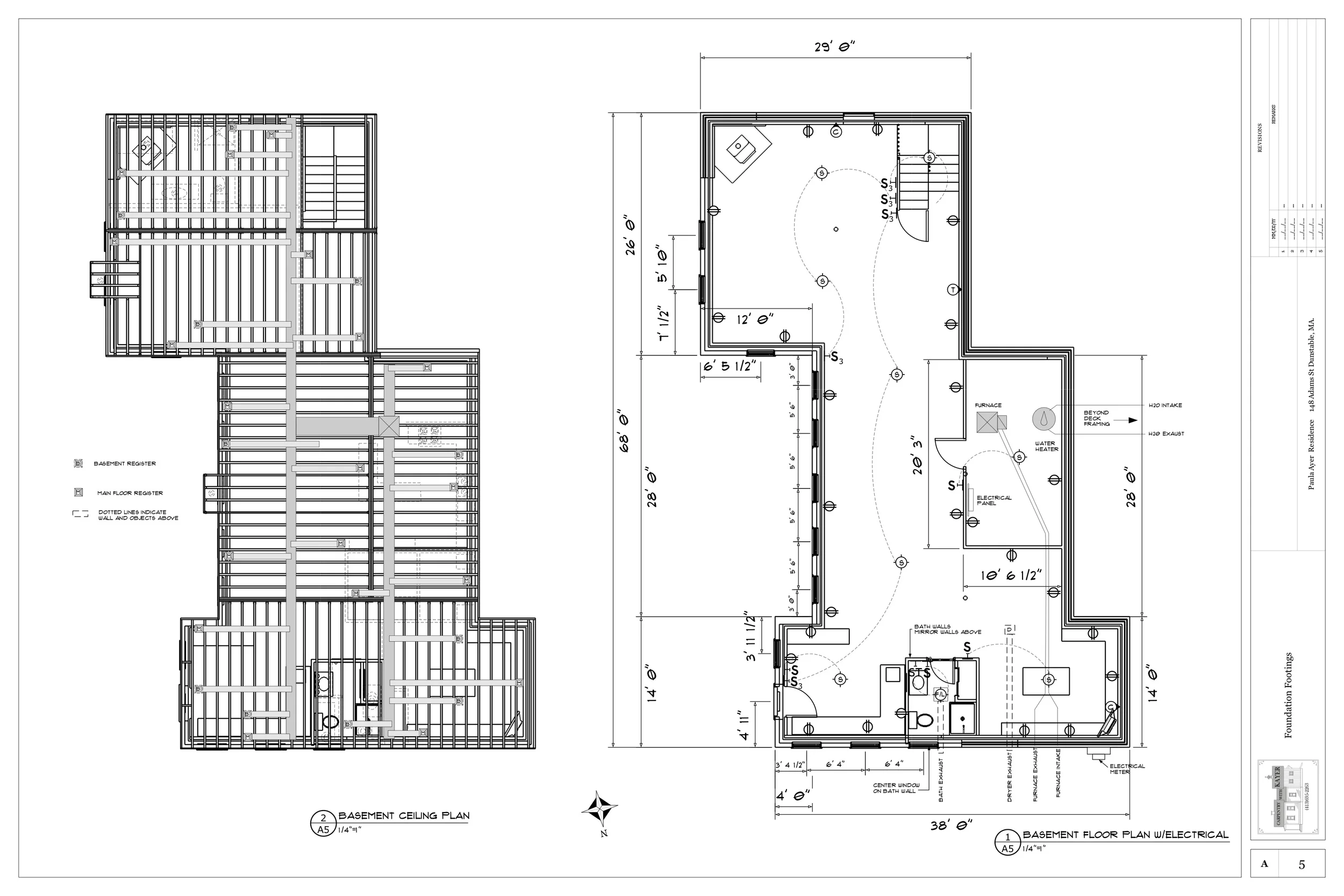
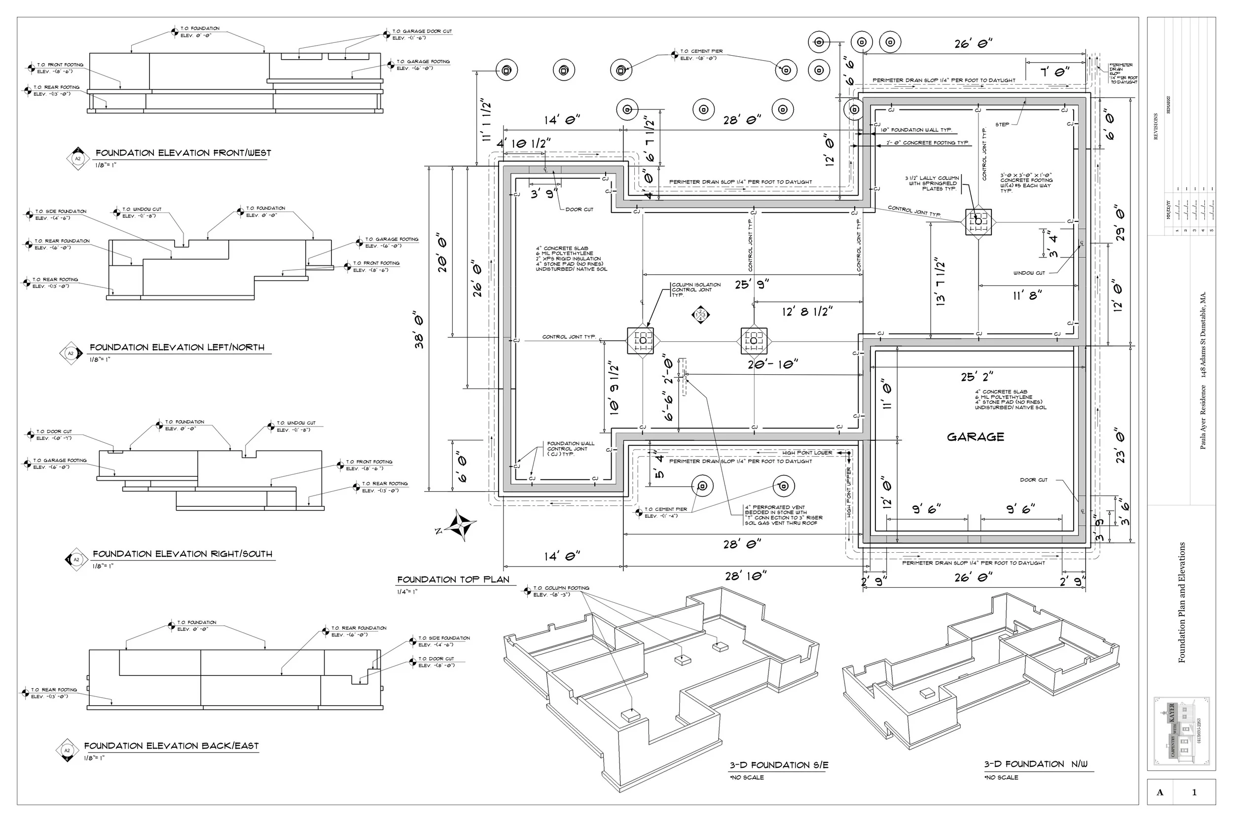
Detailed installation instructions

Detailed installation instructions

Detailed installation instructions

Detailed installation instructions

Detailed installation instructions

Detailed installation instructions

Detailed installation instructions

Detailed installation instructions

Detailed installation instructions

Detailed installation instructions
New House Plans